What can A Beautiful Build do for you?

From a Personal Walk-Through covering the entire project to Consulting just on particular issues, or even if you just want some pictures and video, A Beautiful Build has a service tailor-made for you.

Personal Walk-Through

Start to finish, from meet and greet to punch list and warranty help, we've got you covered.

Consulting

Just need help in one part of the building process? We'll be there.

Advice

Spot help here and there for specific problems is available also.

Before the Builder

If you're at the design stage and need some insight into floor plan options, we've got the experience to point you in a direction that's right for you.

Referrals

Sometimes you need to find a company that fits with your goals and values, and doesn't try to sell you on an approach that doesn't suit the way you want to live. We can help with referrals for every building phase, including finance..

Photography and Video

You might want to build a visual record of the whole process, or just a few snapshots at the end. Either way we have the knowledge and expertise to make it happen.

A Step In The Right Direction

A Beautiful Build understands that the first step to building is just the thought that you want to build. It’s defining and remembering your original purpose for your dream. As Your Home Construction Advocate, we gather that information from you to help improve communication through your entire building story. Our services are designed to assist in each step of the process no matter where you need us.
Raised Image

Raised Image

Personal Walk-thru from beginning to end

(Or at any point you’re at.) – From the very beginning of your building journey – just starting with the thought of building your own home? Have you purchased your land? Picked out a floor plan or thinking about designing your own plan because you can’t find one you like? – all the way through your warranty after completion of the project. A Beautiful Build is here, as a walk-through guide (holding your hand as needed) from step zero till every moving box is unpacked. We can be there every step of the way; from whatever point you discover A Beautiful Build, until you’re cozy at home.

Find more...

Consulting on any or all aspects of the building process

Are you in the middle of your build, and have questions about parts of the process? Need an additional opinion, or look at everything? Trying to understand the whole building process, but don’t need a personal guide through every step? We’re here to help answer questions, and make sure your needs are met, no matter how little of time you need from us.

Find more...

Advice and Opinions on choices and design

From layout/floorplan design questions, and ideas, to color choices, lighting styles, trim work, flooring, appliances and more. Just want a 2nd (3rd?) opinion on cabinets, flooring, colors, anything? We’re here to help you with any individual aspect of your build, remodel, or home improvement project that you need.

Find more...

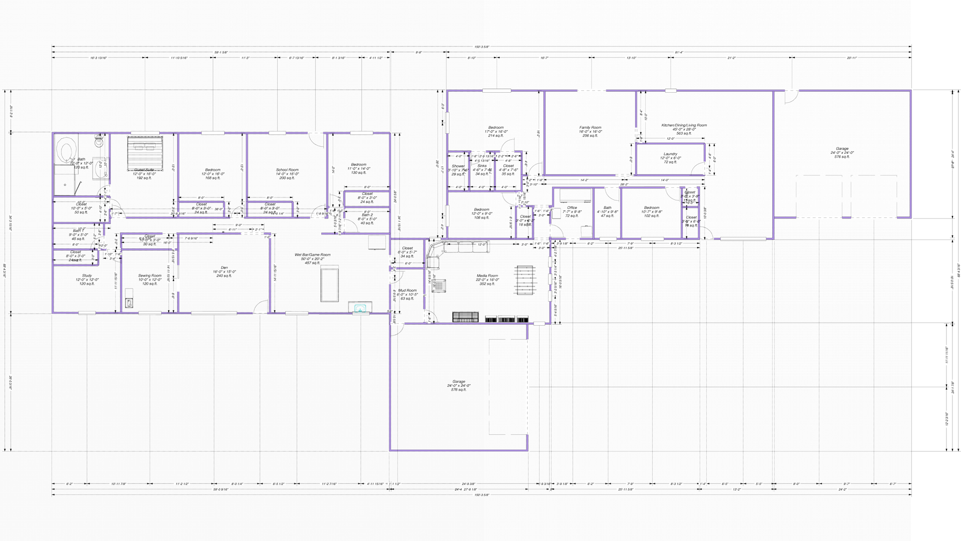
Before the Builder – Design/layouts and floorplans

Need help, opinions, options on the design of your new build, remodel or improvement project? We’re here to help guide you in the design, adjust an already existing plan, or help bounce off ideas for the vision of your home. We can help with the basic design of layouts and floor plans, and then help you find the right person to finish out any new designs – heading to the architect, or draftsman.

Find more...

Company Referrals

A Beautiful Build has a company referral list for helping to find the right builder/contractor, subs for doing one specific job, companies that meet just one specific repair or replacement (New carpet? New counters?) Companies who are reliable, trustworthy, and follow through with their promises.

Find more...

Financing Guidance

It can be tricky to navigate the understanding of financing your own build. If you need guidance on finding the right bank to work with or understanding how the financing process works – give us a call! We’ve navigated the tricky landscape of possible ins and outs of finding your source of money to build your dream home!

Find more...

Photography and Video Services

We offer a range of photography and videography services to capture all aspects of your build. Whether you want every step catalogued, or just the beauty of your design and project captured, our service is here for you.

Find more...
Raised Image

Planning and Design Stats

Behind-the-scenes parts and pieces of A Beautiful Build

274

Smoothies

421

Pencils

1,364

Erasers

18

Reams of Paper

Would You Like to Work With Us?

We'd love to work with you. Contact us using the form below and provide some details about yourself, your project and let us know how we can help!